试压机对于阀门、管件生产厂家一定不陌生,每天都要用到的测试管件、阀门密封性及压力标准的设备。
那么传统试压机与长迅试压机有什么区别呢?下面从试压过程的对比中来了解一下。
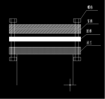
传统试压机试压过程:

(图为管道过滤器)
以管道过滤器为例,工人首先要将工件运至测试区,将带橡胶板的盲板放在滤芯密封面,对准法兰孔,穿上螺丝并紧固,客户工件比图片中的要大,总共需要上十几甚至二十几个螺丝,这段过程所需时间大约十分钟左右,然后把工件吊至带橡胶板的简易试压机上,大体放正,人工盖上带橡胶板的上盲板,手工转动丝杠,将带橡胶板的上盲板压住,然后进行打压测试,测试结束,手动松开丝杠,取下带橡胶板的上盲板,然后将工件吊下带橡胶板的试压机,松开取下滤芯密封面带橡胶板的盲板的螺丝,卸下带橡胶板的盲板,打压结束。
长迅试压机试压过程:
1、将塔吊将管件放置在试压机上。
2、调整好左右油缸高度和角度。
3、放置密封胶板,根据管件口径以及测试压力,查看压力对照表,设置好油缸电接点压力表上限,动作油缸使用盲板密封住管口。
4、打开放气阀,开启低压水泵,将管件注满水。
5、关闭放气阀,关闭低压水泵,关闭低压球阀。
6、设置好测试电接点压力表,开启高压泵,进行压力测试。
7、观察管件有无渗漏,压力表是否掉压,判断管件是否合格。
8、开启卸荷阀,动作油缸松开密封盲板,取下橡胶板,管件测试完毕。
通过以上对比,不难看出,传统试压机的过程繁琐且劳动强度过大,工人每天都要把管件搬上搬下,有的甚至肩膀都烙下了病根,在试压前,还需要放上橡胶垫密封,再拧螺丝,效率太低,不能满足现有产能需求,劳动力成本高。
长迅试压机,对比传统试压机,不但测压过程简单,且精确度高。更重要的是,长迅试压机是经过专业技术团队通过不断的研发、实践,试压效率是传统试压机的6倍以上,化繁为简。其自动化程度更是解放了大部分劳动力,工人不会像之前一样劳累。
所以,通过上述试压过程的例子,作为阀门、管件生产型企业,还有什么理由不选择“长迅”?
上一篇:鲁西化工第一次售后
下一篇:长迅试压机付款优惠政策